pasquale cassavia architetto
client
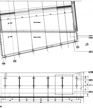
costruttivi, disegni di posa, esecutivi
costruttivi, disegni di posa, esecutivi, shop drawings
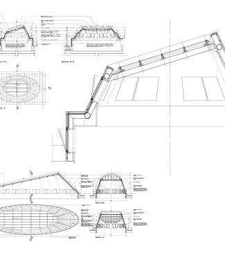
esecutivi
details, rendering